Kępa Kiełpińska, ul. Brzegowa 114

Kępa Kiełpińska
ul. Brzegowa 114

OSIEDLE „OSADA FANTAZJA”

OSIEDLE MAZOWIECKIE WIERZBY

Nasza nowa inwestycja to sześć budynków mieszkalnych dwulokalowych (12 lokali) budowanych według projektu indywidualnego, położonych w cichej, malowniczej części Łomianek Dolnych. Każdy lokal posiada własny ogród oraz dwa miejsca postojowe, z czego jedno w indywidualnym garażu w bryle budynku, zapewniając poczucie swobody oraz komfortu. Odbiór do użytkowania całej inwestycji planowany jest na II kwartał 2025 roku , zakończenie budowy do końca 2024 roku.

Wykończenie

TECHNOLOGIA
BUDOWY:

Płyta żelbetowa, ściany ceramiczne,  stropy monolityczne żelbetowe, schody na piętro żelbetowe, pokrycie dachu dachówka betonowa kolor grafit, ocieplenie ścian zewnętrznych 20 cm styropianu, tynk cienkowarstwowy.

INFRASTRUKTURA
ZEWNĘTRZNA W ZAKRESIE:

Przyłącze elektryczne, woda oraz kanalizacja miejska, ogrodzenie całej działki z bramą wjazdową i furtką, kostka betonowa.

WYKOŃCZENIE BUDYNKU WEWNĄTRZ W ZAKRESIE:

Instalacje elektryczne i alarmowe, instalacje hydrauliczne i centralnego ogrzewania, tynki gipsowe, izolacje i szlichty, dach ocieplony pianą natryskową.

Osiedle „Osada Fantazja” zlokalizowane jest w Kępie Kiełpińskiej (gmina Łomianki) przy ul. Brzegowej 114. Osiedle składa się z dwunastu budynków mieszkalnych dwulokalowych (24 lokali) budowanych według projektu indywidualnego, położonych w cichej, malowniczej części Kępy Kiełpińskiej. Każdy lokal posiada własny ogród oraz dwa miejsca postojowe, z czego jedno w indywidualnym garażu w bryle budynku, zapewniając poczucie swobody oraz komfortu. Odbiór do użytkowania całej inwestycji planowany jest na II kwartał 2026 roku , zakończenie budowy do końca 2025 roku.

Osiedle „Osada Fantazja” dedykowane jest dla osób ceniących sobie cisze i spokój oraz otoczenie fauny i flory. W bezpośrednim sąsiedztwie inwestycji, poza licznymi drzewami i łąkami, znajduje się również znana stadnina koni, której wybiegi można podziwiać bezpośrednio z okien lokali. Dodatkowo w promieniu 1 kilometra znajdują się korty tenisowe, licznie inne stadniny koni, Rezerwat przyrody jezioro Kiełpinskie oraz liczne tereny spacerowe. Około 2 kilometry od inwestycji znajduje się przystanek warszawskiej komunikacji miejskiej z autobusami jeżdżącym do przystanku Metra Młociny.

Inwestycja składa się z 12 budynków mieszkalnych – dwulokalowych, łącznie 24 lokali, każdy o powierzchni około 123 m2, wraz z działkami o powierzchni zaczynającej się od 284 do 414 m2.

Dodatkowo każdy lokal posiada przestronne poddasze oraz dostęp do wody, gazu, prądu oraz światłowodu. Każdy lokal wyposażony jest we własny zbiornik asenizacyjny.

Wybrany projekt łączy w sobie funkcjonalny układ wnętrza z atrakcyjną architekturą. Dom posiada dwa poziomy mieszkalne, parter z obszernym doświetlonym salonem oraz pełne piętro bez skosów. Duże powierzchnie przeszklone zapewniają doskonałe doświetlenie wnętrza. To wszystko powoduje, że jest to idealne położenie dla Państwa nowego domu!

Każdy lokal posiada własny ogród oraz dwa miejsca postojowe, z czego jedno w indywidualnym garażu w bryle budynku, zapewniając poczucie swobody oraz komfortu.

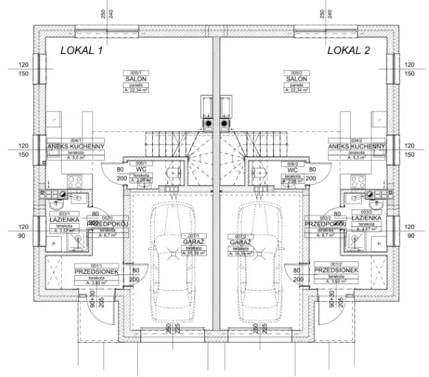
Rzut lokali

Cennik i dostępność

Nr. Metraż działki Metraż lokalu Cena Pakiet Standard Cena Pakiet Max Status
A1
340 m²
123,42 m²
819.000,00 zł brutto (6635,88 zł brutto/m2)
819.000,00 zł brutto (6635,88 zł brutto/m2)

SPRZEDANE

A2
288 m²
123,42 m²
799.000,00 zł brutto (6473,83 zł brutto/m2)
829.000,00 zł brutto (6716,90 zł brutto/m2)

SPRZEDANE

B1
288 m²
123,42 m²
799.000,00 zł brutto (6473,83 zł brutto/m2)
829.000,00 zł brutto (6716,90 zł brutto/m2)

SPRZEDANE

B2
414 m²
123,42 m²
859.000,00 zł brutto (6959,97 zł brutto/m2)
859.000,00 zł brutto (6959,97 zł brutto/m2)

SPRZEDANE

C1
294 m²
123,42 m²
809.000,00 zł brutto (6554,85 zł brutto/m2)
839.000,00 zł brutto (6797,93 zł brutto/m2)

SPRZEDANE

C2
284 m²
123,42 m²
799.000,00 zł brutto (6473,83 zł brutto/m2)
829.000,00 zł brutto (6716,90 zł brutto/m2)

SPRZEDANE

D1
288 m²
123,42 m²
849.000,00 zł brutto (6878,95 zł brutto/m2)
879.000,00 zł brutto (7122,02 zł brutto/m2)

SPRZEDANE

D2
288 m²
123,42 m²
849.000,00 zł brutto (6878,95 zł brutto/m2)
879.000,00 zł brutto (7122,02 zł brutto/m2)

SPRZEDANE

E1
288 m²
123,42 m²
849.000,00 zł brutto (6878,95 zł brutto/m2)
879.000,00 zł brutto (7122,02 zł brutto/m2)

SPRZEDANE

E2
288 m²
123,42 m²
849.000,00 zł brutto (6878,95 zł brutto/m2)
879.000,00 zł brutto (7122,02 zł brutto/m2)

SPRZEDANE

F1
288 m²
123,42 m²
899.000,00 zł brutto (7284,07 zł brutto/m2)
929.000,00 zł brutto (7527,14 zł brutto/m2)

DOSTĘPNE

F2
288 m²
123,42 m²
899.000,00 zł brutto (7284,07 zł brutto/m2)
929.000,00 zł brutto (7527,14 zł brutto/m2)

DOSTĘPNE

G1
288 m²
123,42 m²
899.000,00 zł brutto (7284,07 zł brutto/m2)
929.000,00 zł brutto (7527,14 zł brutto/m2)

ZAREZERWOWANE

G2
288 m²
123,42 m²
899.000,00 zł brutto (7284,07 zł brutto/m2)
929.000,00 zł brutto (7527,14 zł brutto/m2)

SPRZEDANE

H1
310 m²
123,42 m²
949.000,00 zł brutto (7689,19 zł brutto/m2)
979.000,00 zł brutto (7932,26 zł brutto/m2)

SPRZEDANE

H2
232 m²
123,42 m²
899.000,00 zł brutto (7284,07 zł brutto/m2)
929.000,00 zł brutto (7527,14 zł brutto/m2)

DOSTĘPNE

I1
232 m²
123,42 m²
899.000,00 zł brutto (7284,07 zł brutto/m2)
929.000,00 zł brutto (7527,14 zł brutto/m2)

DOSTĘPNE

I2
232 m²
123,42 m²
899.000,00 zł brutto (7284,07 zł brutto/m2)
929.000,00 zł brutto (7527,14 zł brutto/m2)

DOSTĘPNE

J1
232 m²
123,42 m²
849.000,00 zł brutto (6878,95 zł brutto/m2)
879.000,00 zł brutto (7122,02 zł brutto/m2)

SPRZEDANE

J2
232 m²
123,42 m²
849.000,00 zł brutto (6878,95 zł brutto/m2)
879.000,00 zł brutto (7122,02 zł brutto/m2)

SPRZEDANE

K1
508 m²
123,42 m²
849.000,00 zł brutto (6878,95 zł brutto/m2)
879.000,00 zł brutto (7122,02 zł brutto/m2)

SPRZEDANE

K2
253 m²
123,42 m²
849.000,00 zł brutto (6878,95 zł brutto/m2)
879.000,00 zł brutto (7122,02 zł brutto/m2)

SPRZEDANE

L1
390 m²
123,42 m²
849.000,00 zł brutto (6878,95 zł brutto/m2)
879.000,00 zł brutto (7122,02 zł brutto/m2)

SPRZEDANE

L2
505 m²
123,42 m²
819.000,00 zł brutto (6635,88 zł brutto/m2)
849.000,00 zł brutto (6878,95 zł brutto/m2)

SPRZEDANE

Zobacz również