ŁOMIANKI, UL. CZERWONYCH MAKÓW 17-21

ŁOMIANKI
UL. CZERWONYCH MAKÓW 17-21

OSIEDLE Zaciszna Polana

OSIEDLE MAZOWIECKIE WIERZBY

Nasza nowa inwestycja to sześć budynków mieszkalnych dwulokalowych (12 lokali) budowanych według projektu indywidualnego, położonych w cichej, malowniczej części Łomianek Dolnych. Każdy lokal posiada własny ogród oraz dwa miejsca postojowe, z czego jedno w indywidualnym garażu w bryle budynku, zapewniając poczucie swobody oraz komfortu. Odbiór do użytkowania całej inwestycji planowany jest na II kwartał 2025 roku , zakończenie budowy do końca 2024 roku.

Wykończenie

TECHNOLOGIA
BUDOWY:

Płyta żelbetowa, ściany ceramiczne,  stropy monolityczne żelbetowe, schody na piętro żelbetowe, pokrycie dachu dachówka betonowa kolor grafit, ocieplenie ścian zewnętrznych 20 cm styropianu, tynk cienkowarstwowy.

INFRASTRUKTURA
ZEWNĘTRZNA W ZAKRESIE:

Przyłącze elektryczne, woda oraz kanalizacja miejska, ogrodzenie całej działki z bramą wjazdową i furtką, kostka betonowa.

WYKOŃCZENIE BUDYNKU WEWNĄTRZ W ZAKRESIE:

Instalacje elektryczne i alarmowe, instalacje hydrauliczne i centralnego ogrzewania, tynki gipsowe, izolacje i szlichty, dach ocieplony pianą natryskową.

Nowy etap naszej inwestycji składa się z 3 budynków mieszkalnych dwulokalowych (6 lokali) budowanych według projektu indywidualnego, lokalizowanych w zielonej i spokojnej części Łomianek Dolnych. Każdy lokal posiada ogród oraz dwa miejsca postojowe, zapewniając poczucie swobody oraz komfortu. Zakończenie budowy tego etapu planowane jest na I kwartał 2025 roku .

Osiedle „Zaciszna Polana” zlokalizowane jest w Łomiankach Dolnych przy ul. Brzegowej, około 130 metrów od ul. Armii Poznań, w otoczeniu licznych łąk oraz zabudowy jednorodzinnej. W promieniu 2000 metrów znajdują się liczne sklepy, usługi (przy ul. Warszawskiej oraz ul. Rolniczej), stadnina koni, liczne tereny spacerowe oraz przystanek komunikacji miejskiej (przy ul. Rolniczej oraz ul. Ogrodowej), z autobusami jeżdżącym do przystanku Metra Młociny.

W tym etapie budujemy 3 budynki dwulokalowe w dwóch wariantach:
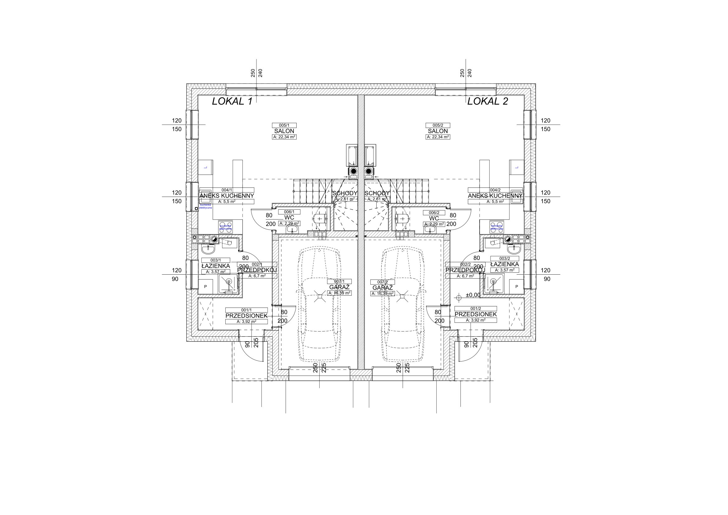
1. lokale o łącznej powierzchni 121m², dwupoziomowe składające się z przestronnego salonu z aneksem kuchennym, osobnej łazienki, wc i przedpokoju oraz pełnego piętra bez skosów z czterema sypialniami i łazienką. W bryle budynku garaż a drugie miejsce postojowe znajduje się przed budynkiem. Powierzchnie działek ok. 360m²,. powierzchnie ogródków ok. 250m².
2. lokale o powierzchni użytkowej 68,5m² (powierzchnia całkowita z poddaszem do własnej adaptacji wynosi ok. 100m²), dwupoziomowe składające się z przestronnego salonu z aneksem kuchennym, osobnej łazienki, wc i przedpokoju oraz pełnego piętra bez skosów z trzema sypialniami i łazienką. Przed budynkiem znajdują się dwa miejsca postojowe do wyłącznego korzystania. Powierzchnie działek ok. 260m², powierzchnie ogródków ok. 170m²

Dodatkowo każdy lokal posiada dostęp do wody z sieci miejskiej, prądu oraz światłowodu. Budynki posiadają własne zbiorniki asenizacyjne. Możliwość dobrania pakietu MAX z POMPĄ CIEPŁA oraz ogrzewaniem podłogowym w całym lokalu w kwocie 50.000 złotych.

To wszystko powoduje, że jest to idealne położenie dla Państwa nowego lokalu. Różnorodna forma zabudowy lokali pozwala na optymalny wybór nowego miejsca zamieszkania, dopasowany do własnych potrzeb. Duże powierzchnie przeszklone zapewniają doskonałe doświetlenie wnętrza i piękne widoki na otaczające osiedle liczne łąki i drzewa. 

Rzut lokali

Rzuty Budynku A parter
Rzuty Budynku A parter
RZUTY BUDYNKÓW B ORAZ C PARTER
RZUTY BUDYNKU A PIĘTRO
RZUTY BUDYNKÓW B ORAZ C PIĘTRO

Cennik i dostępność

Nr. Metraż działki Metraż lokalu Cena Pakiet Standard Cena Pakiet Max Status
A1
930 m²
121,85 m²
1.100.000,00 zł brutto (9027,49 zł/m²)
1.150.000,00 zł brutto (9437,83 zł/m²)

SPRZEDANE

A2
250 m²
121,85 m²
799.000,00 zł brutto (6557,24 zł/m²)
849.000,00 zł brutto (6967,58 zł/m²)

SPRZEDANE

B1
170 m²
68,50 m²
699.000,00 zł brutto (10.204,38 zł/m²)
749.000,00 zł brutto (10.934,31 zł/m²)

SPRZEDANE

B2
170 m²
68,50 m²
699.000,00 zł brutto (10.204,38 zł/m²)
749.000,00 zł brutto (10.934,31 zł/m²)

SPRZEDANE

C1
170 m²
68,50 m²
699.000,00 zł brutto (10.204,38 zł/m²)
749.000,00 zł brutto (10.934,31 zł/m²)

SPRZEDANE

C2
170 m²
68,50 m²
699.000,00 zł brutto (10.204,38 zł/m²)
749.000,00 zł brutto (10.934,31 zł/m²)

SPRZEDANE

Zobacz również