Łomianki, ul. Strumykowa 74

Łomianki,
ul. Strumykowa 74

Osiedle „Strumykowa Aleja”

OSIEDLE MAZOWIECKIE WIERZBY

Nasza nowa inwestycja to sześć budynków mieszkalnych dwulokalowych (12 lokali) budowanych według projektu indywidualnego, położonych w cichej, malowniczej części Łomianek Dolnych. Każdy lokal posiada własny ogród oraz dwa miejsca postojowe, z czego jedno w indywidualnym garażu w bryle budynku, zapewniając poczucie swobody oraz komfortu. Odbiór do użytkowania całej inwestycji planowany jest na II kwartał 2025 roku , zakończenie budowy do końca 2024 roku.

Wykończenie

TECHNOLOGIA
BUDOWY:

Płyta żelbetowa, ściany ceramiczne,  stropy monolityczne żelbetowe, schody na piętro żelbetowe, pokrycie dachu dachówka betonowa kolor grafit, ocieplenie ścian zewnętrznych 20 cm styropianu, tynk cienkowarstwowy.

INFRASTRUKTURA
ZEWNĘTRZNA W ZAKRESIE:

Przyłącze elektryczne, woda oraz kanalizacja miejska, ogrodzenie całej działki z bramą wjazdową i furtką, kostka betonowa.

WYKOŃCZENIE BUDYNKU WEWNĄTRZ W ZAKRESIE:

Instalacje elektryczne i alarmowe, instalacje hydrauliczne i centralnego ogrzewania, tynki gipsowe, izolacje i szlichty, dach ocieplony pianą natryskową.

Osiedle „Strumykowa Aleja” zlokalizowane jest w Łomiankach przy ul. Strumykowej 74. Osiedle składa się z jedenastu budynków mieszkalnych dwulokalowych (22 lokali) budowanych według projektu indywidualnego, położonych w spokojnej części Łomianek Dolnych. Każdy lokal posiada własny ogród  oraz dwa miejsca postojowe przed lokalem, zapewniając poczucie swobody oraz komfortu. Budowa osiedla podzielona jest na 3 etapy. Zakończenie budowy planowane jest dla każdego etapu w terminach:

  • Zadanie 1 – do 31.12.2026 roku
  • Zadanie 2 – do 30.06.2027 roku
  • Zadanie 3 – do 31.12.2027 roku

Osiedle „Strumykowa Aleja” dedykowane osobom ceniącym sobie cisze i spokój oraz szybki dostęp do infrastruktury miasta. W sąsiedztwie inwestycji, poza licznymi drzewami i łąkami, znajdują się również korty tenisowe, Jezioro Pawłowskie z budowaną strefą wypoczynkowo edukacyjną wraz z kładką spacerową i tarasem. Dodatkowo w promieniu 1 kilometra od osiedla znajdują się liczne sklepy, usługi, plac zabaw oraz przystanek warszawskiej komunikacji miejskiej. 

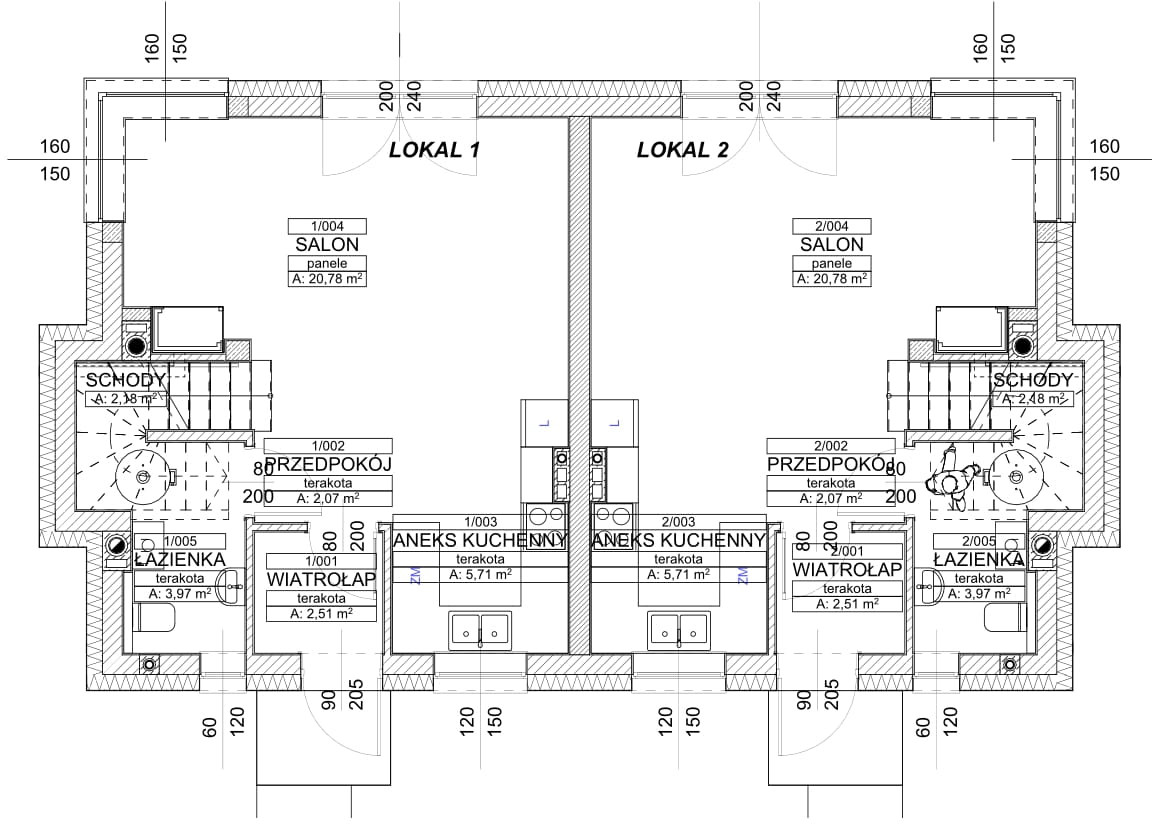
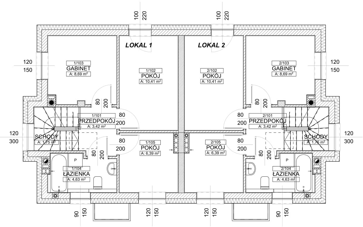
Inwestycja składa się z 11 budynków mieszkalnych – dwulokalowych, łącznie 22 lokali, każdy o powierzchni użytkowej około 68,5 m2 (powierzchni całkowitej wraz z poddaszem 100 m2), wraz z działkami o powierzchni zaczynającej się od 280 do 570 m2.

Dodatkowo każdy lokal posiada przestronne poddasze z możliwością adaptacji do łącznej powierzchni całkowitej lokalu 100 m2. Każdy lokal posiada indywidualny dostęp do wody, prądu oraz światłowodu. Każdy lokal wyposażony jest we własny zbiornik asenizacyjny.

Wybrany projekt łączy w sobie funkcjonalny układ wnętrza z atrakcyjną architekturą. Dom posiada dwa poziomy mieszkalne, parter z obszernym doświetlonym salonem oraz pełne piętro bez skosów. Duże powierzchnie przeszklone zapewniają doskonałe doświetlenie wnętrza. To wszystko powoduje, że jest to idealne położenie dla Państwa nowego domu!

Rzut lokali

Parter
Piętro

Cennik i dostępność

Nr. Metraż działki Metraż lokalu Cena Pakiet Standard Cena Pakiet Max Status
74/1
350 m²
68,58 m²
719.000,00 zł brutto
(10.484,11 zł brutto/m2)
769.000,00 zł brutto
(11.213,18 zł brutto/m2)

SPRZEDANE

74/2
280 m²
68,58 m²
719.000,00 zł brutto
(10.484,11 zł brutto/m2)
769.000,00 zł brutto
(11.213,18 zł brutto/m2)

ZAREZERWOWANE

74A/1
280 m²
68,58 m²
719.000,00 zł brutto
(10.484,11 zł brutto/m2)
769.000,00 zł brutto
(11.213,18 zł brutto/m2)

ZAREZERWOWANE

74A/2
280 m²
68,58 m²
729.000,00 zł brutto
(10.629,92 zł brutto/m2
(najniższa cena z ostatnich
30 dni 719.000,00 brutto
)
779.000,00 zł brutto
(11.359,00 zł brutto/m2)
(najniższa cena z ostatnich
30 dni 769.000,00 brutto
)

DOSTĘPNE

74B/1
280 m²
68,58 m²
719.000,00 zł brutto
(10.484,11 zł brutto/m2)
769.000,00 zł brutto
(11.213,18 zł brutto/m2)

SPRZEDANE

74B/2
280 m²
68,58 m²
729.000,00 zł brutto
(10.629,92 zł brutto/m2)
(najniższa cena z ostatnich
30 dni 719.000,00 brutto
)
779.000,00 zł brutto
(11.359,00 zł brutto/m2
(najniższa cena z ostatnich
30 dni 769.000,00 brutto
)

DOSTĘPNE

74C/1
280 m²
68,58 m²
729.000,00 zł brutto
(10.629,92 zł brutto/m2)
(najniższa cena z ostatnich
30 dni 719.000,00 brutto
)
779.000,00 zł brutto
(11.359,00 zł brutto/m2)
(najniższa cena z ostatnich
30 dni 769.000,00 brutto
)

ZAREZERWOWANE

74C/2
280 m²
68,58 m²
729.000,00 zł brutto
(10.629,92 zł brutto/m2)
(najniższa cena z ostatnich
30 dni 719.000,00 brutto
)
779.000,00 zł brutto
(11.359,00 zł brutto/m2)
(najniższa cena z ostatnich
30 dni 769.000,00 brutto
)

ZAREZERWOWANE

74D/1
280 m²
68,58 m²
769.000,00 zł brutto
(11.213,18 zł brutto/m2)
819.000,00 zł brutto
(11.942,26 zł brutto/m2)

DOSTĘPNE

74D/2
280 m²
68,58 m²
769.000,00 zł brutto
(11.213,18 zł brutto/m2)
819.000,00 zł brutto
(11.942,26 zł brutto/m2)

DOSTĘPNE

74E/1
280 m²
68,58 m²
769.000,00 zł brutto
(11.213,18 zł brutto/m2)
819.000,00 zł brutto
(11.942,26 zł brutto/m2)

DOSTĘPNE

74E/2
280 m²
68,58 m²
769.000,00 zł brutto
(11.213,18 zł brutto/m2)
819.000,00 zł brutto
(11.942,26 zł brutto/m2)

DOSTĘPNE

74F/1
280 m²
68,58 m²
769.000,00 zł brutto
(11.213,18 zł brutto/m2)
819.000,00 zł brutto
(11.942,26 zł brutto/m2)

DOSTĘPNE

74F/2
280 m²
68,58 m²
769.000,00 zł brutto
(11.213,18 zł brutto/m2)
819.000,00 zł brutto
(11.942,26 zł brutto/m2)

ZAREZERWOWANE

74G/1
280 m²
68,58 m²
769.000,00 zł brutto
(11.213,18 zł brutto/m2)
819.000,00 zł brutto
(11.942,26 zł brutto/m2)

DOSTĘPNE

74G/2
280 m²
68,58 m²
769.000,00 zł brutto
(11.213,18 zł brutto/m2)
819.000,00 zł brutto
(11.942,26 zł brutto/m2)

DOSTĘPNE

74H/1
280 m²
68,58 m²
819.000,00 zł brutto
(11.942,26 zł brutto/m2)
869.000,00 zł brutto
(12.671,33 zł brutto/m2)

DOSTĘPNE

74H/2
280 m²
68,58 m²
819.000,00 zł brutto
(11.942,26 zł brutto/m2)
869.000,00 zł brutto
(12.671,33 zł brutto/m2)

DOSTĘPNE

74J/1
280 m²
68,58 m²
819.000,00 zł brutto
(11.942,26 zł brutto/m2)
869.000,00 zł brutto
(12.671,33 zł brutto/m2)

DOSTĘPNE

74J/2
280 m²
68,58 m²
819.000,00 zł brutto
(11.942,26 zł brutto/m2)
869.000,00 zł brutto
(12.671,33 zł brutto/m2)

DOSTĘPNE

74K/1
280 m²
68,58 m²
819.000,00 zł brutto
(11.942,26 zł brutto/m2)
869.000,00 zł brutto
(12.671,33 zł brutto/m2)

DOSTĘPNE

74K/2
570 m²
68,58 m²
819.000,00 zł brutto
(11.942,26 zł brutto/m2)
869.000,00 zł brutto
(12.671,33 zł brutto/m2)

DOSTĘPNE

Zobacz również